New projects
Subsales
Rentals
New launch
Shah Alam
Price Range
SPA Price Before Rebate
RM1,394,560
Bedroom
5
Bathroom
Get the latest offer for this project
Why Marbella @ D’Kayangan Residence?
1
Easy Accesibility (*KESAS, NKVE, ELITE, FEDERAL)
2
Tropical-guarded community with 24-hour surveillance
3
Low density
4
Comprehensive perimeter fences
Nearby commercial galleries and minutes to Shah Alam's biggest shopping mall
Home details
Developer
Kumpulan Lebar Daun
Price per sqft
RM426 - RM452 psf
Title
Individual
Tenure
Leasehold
Type
Terrace
Layout size
3,085 sqft - 3,270 sqft
Unit layouts
Unit type
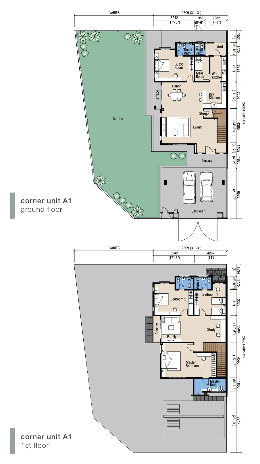
Type A1
Land size
NaN' × NaN'
Bedrooms
Bathrooms
Subsale listings
0 result
Rental listings